О заседании городского градостроительного совета

В Снежинске состоялось очередное заседание городского градостроительного совета, на котором рассматривались следующие вопросы:
1. Эскизное предложение проекта планировки территории микрорайонов №22а и №22б города Снежинска.
![]() |
![]() |
![]() |
![]() |
Проектная организация: ООО «Си Групп Проект»
Застройщик: ООО «Матрикс»
Докладчик: Беденко Олег Васильевич
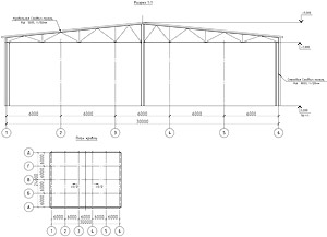
2. Эскизный проект здания модульного типа из быстровозводимых конструкций для хранения и ремонта яхтенного и парусного оборудованияна земельном участке по адресу: Челябинская обл., г. Снежинск, ул. 40 лет Октября (территория «Яхт-клуба»).
![]() |
![]() |
![]() |
![]() |
![]() |
![]() |
![]() |
![]() |
![]() |
|
Проектная организация: ООО «ТОР-ИНЖИНИРИНГ»
Застройщик: СГСОО «Снежинская Федерация
парусного спорта»
Докладчик: Костарев Сергей
3. Эскизный проект реконструкции здания «Универмаг» по адресу: Челябинская обл., г. Снежинск, ул. Свердлова, 15.
![]() |
![]() |
![]() |
![]() |
![]() |
![]() |
![]() |
|
Застройщик: ЗАО «Партнер»
Докладчик: Козыбаев Руслан Молдажанович.
По первому вопросу были представлены варианты эскизных проектов планировки микрорайонов 22А и 22Б.
Особенностью варианта 1 застройки земельного участка является сведенное к минимуму количество асфальтированной территории, что влечет снижение количества автомобильного транспорта, при этом сохраняется возможность беспрепятственного передвижения автомобилей экстренных служб.
Подземной прокладке подлежат только сети водоснабжения, бытовая канализация и ливневая канализация. Прочие коммуникации – наружное освещение, электросети, радио и связь – решены воздушной прокладкой. Данное решение принято в целях сокращения общей протяженности сетей.
В проекте не предусмотрено размещение школ и дошкольных учреждений, так как ими достаточно обеспечены смежные микрорайоны.
Предусматривается один магазин и игровая зона с площадками и спортивным кортом.
При разработке варианта 2 получено множество участков неправильной формы. Кроме того данным вариантом проекта планировки предусмотрены таунхаусы вместо индивидуальных жилых домов, что не допускается по условиям предоставления земельного участка. Также данным вариантом предусматривается зеленая зона, ограждающая жилую застройку от намеченной к строительству улицы Забабахина.
По варианту 3 предлагается выполнить сквозной проезд, что является недостатком планировочного решения и противоречит концепции проекта. Также присутствуют трапециевидные земельные участки, как и в варианте 2.
Голосование:
1. Рекомендовать для подготовки документации по планировке территории вариант № 1
За - 5
Против - 5
Воздерживаюсь - 0
2. Рекомендовать для подготовки документации по планировке территории вариант № 3
За - 5
Против - 5
Воздерживаюсь - 0
По итогам голосования:
1. ООО «Матрикс» представить в управление градостроительства доработанные с учетом замечаний и предложений варианты планировки территории № 1 и № 3 (представить видовые точки застройки по двум вариантам с учетом восприятия панорам застройки на уровне точки зрения человека).
2. ООО «Матрикс» и Управлению градостроительства рассмотреть возможность использования прилежащего с западной стороны земельного участка для проектирования и организации благоустройства, предназначенного для будущих жителей мкр.№22А и №22Б и для жителей города в целом.
3. Управлению градостроительства осуществить проверку документации по планировке территории, подготовленную ООО «Матрикс», с учетом рекомендации ГрадоСовета и организовать заседание Градостроительного Совета.
По второму вопросу В. М. Дмитриев доложил о том, что СГСОО «Снежинская федерация парусного спорта» получен земельный участок по адресу: Челябинская обл., г. Снежинск, ул. 40 лет Октября для развития эллинга.
Предполагается установить в дополнение к существующему зданию эллинга дополнительный модуль из быстровозводимых конструкций, предназначенный для обслуживания и хранения яхт. Планируемая модернизация эллинга позволит реализовать применение современных технологий парусного спорта в г. Снежинске.
Размещение объекта намечено в период до октября текущего года, начало эксплуатации – на 2015 год.
Основные объемно-планировочные показатели
|
Наименование показателей |
Ед. изм. |
Количество |
|
Площадь застройки Строительный объем общий |
м2 м3 |
750 5760 |
По второму вопросу:
Голосование:
Согласовать СГСОО «Снежинская Федерация парусного спорта» возможность установки строения (сооружения) вспомогательного назначения на арендованном земельном участке, проект привязки согласовать с заинтересованными службами города.
За - 10
Против - 0
Воздерживаюсь - 0
По третьему вопросу Н. Ю. Пережогина доложила о том, что здание магазина «Универмаг» запроектировано в середине 60-х годов XXвека. На сегодняшний день фасад здания морально устарел, поэтому собственниками здания принято решение о реконструкции объекта.
Линию фасада предлагается выдвинуть на шесть метров, что обеспечит современный вид здания, увеличит его общую площадь, повысит число рабочих мест.
Собственники здания обратились к архитектору Севастьянову Егору Викторовичу (г. Челябинск) с просьбой о разработке эскизного проекта.
Севастьянов Е.В.: Данным эскизным проектом затрагивается восточный фасад здания. Реконструкция охватывает два этажа и позволит создать эксплуатируемую кровлю, которую возможно использовать в качестве террасы различного назначения.
Также предусматривается монтаж информационной полосы (бегущая строка), устройство дополнительного входа в здание, эскалатора (2-4 этаж), а также общая смена стилистики объекта.
Первый этаж решен максимально остекленным, второй этаж – с ленточным остеклением, позволяющим устанавливать торговое оборудование не закрывая витражей.
Ночная подсветка здания в настоящем эскизном проекте не разрабатывалась.
По третьему вопросу:
Голосование:
В связи с тем, что реконструкция универмага – социально значимая идея, ЗАО «Партнер» доработать представленный проект с учетом действующих норм и правил с привязкой к существующей ситуации (в масштабе).
За - 7
Против - 2
Воздерживаюсь - 1






























